Product
Carport SP
Colour

Roofing

Main Material
Aluminum Profile
Polycarbonate Roofing
Intensity In CE
Wind Load =34m/s
Snow Load =600N/㎡
CE Certified Carport


SMPE-K2750SC

SMPE-K2750SC

SMRE-P2750SC + LSMRE-K2750SC

SMPR Colour SC (Tandem Joint)

SMPRE-K2125SC
Size Table

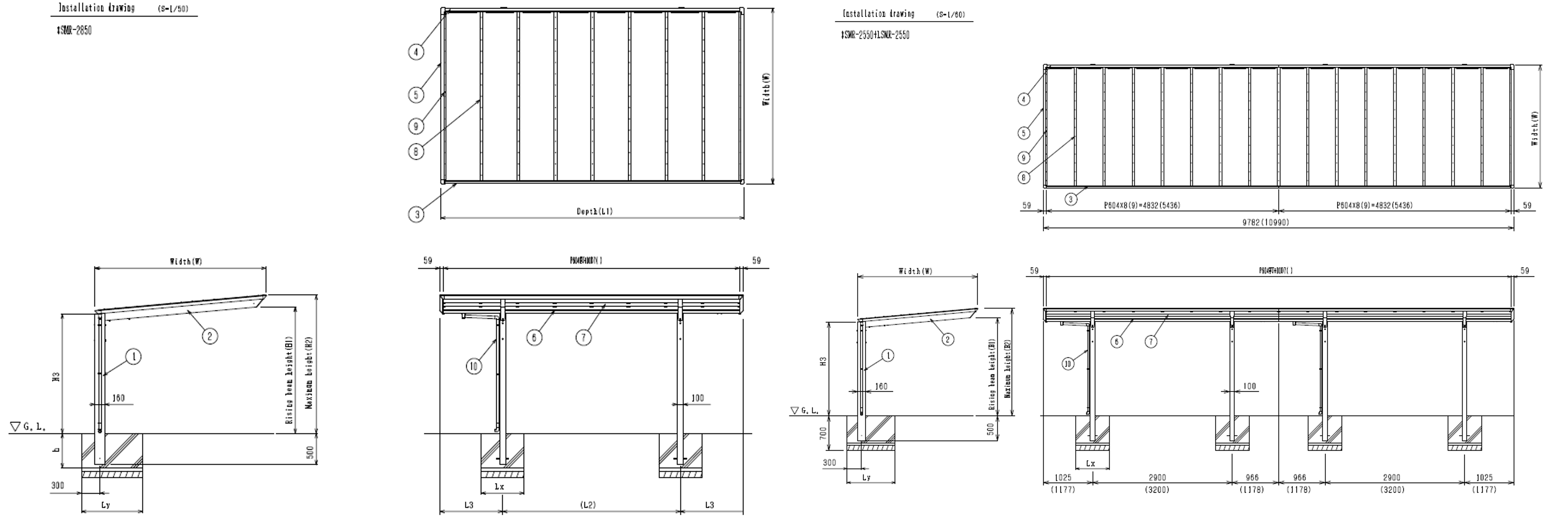
Installation Drawing

Download
Contact
Please feel free to contact us
with any questions regarding our business or products.





